Hidra Edge


Catalogo PDF

Hidra, sempre attenta ai mutamenti del mercato ed alle esigenze di praticità e funzionalità degli addetti ai lavori, propone cornici e profili per esterno rivestite in resina sabbiata, di facile posa e lunga durata. Codificate in molteplici modelli e misure, vi è inoltre la possibilità di elaborare modelli a richiesta del cliente.

Studi tecnici e punti vendita possono quindi ricercare cornici sottogronda o profili per marcapiani e finestre, tra la gamma dei modelli inseriti a catalogo, oppure elaborare un modello su proprio disegno senza alcun costo aggiuntivo.

Di seguito sono codificati alcuni dei principali modelli di marcapiani, sottogronda e profili, sui quali è possibile effettuare modifiche o predisporre la totale rielaborazione del modello.

Hidra, attenta ai mutamenti del mercato ed alle esigenze di praticità e funzionalità dei professionisti e studi tecnici, propone modanature e profili architettonici realizzati in polistirene espanso sintetizzato (E.S.P.) ad alta densità, idoneamente rivestito per esterno, disponibile in diverse tipologie in funzione alle esigenze di progettazione.

Gli elementi decorativi Hidra Edge, sono caratterizzati da una facile posa, infatti grazie al peso ridotto ed all'impegno del collante - rasante Hidra Coll è possibile operare su svariate superfici fissando i decori con estrema rapidità e precisione. Solo per grandi e pesanti strutture si consiglia l'adozione di un pratico sistema di fissaggio meccanico.

Inoltre la grande versatilità della linea, offre la possibilità alla committenza e studi tecnici, di realizzare su misura ogni genere di elemento decorativo in funzione delle specifiche tecniche richieste.

La lunga durata e resistenza alle interperie delle realizzazioni Hidra Edge, offrono la sicurezza e la serenità di operare con materiali all'avanguardia e tecnicamente avanzati. Grazie all'implementazione di nuove linee produttive vi è la possibiltà di optare in sede di realizzazione per tre tipologie di rivestimento:

S.P. Soft Protection, rivestimento per esterno a basso spessore a base di resine epossidiche in emulsione con finitura tipo civile. Prodotto economico, leggero, dotato di buona resistenza ed elasticità.

H.P. Hard Protection, rivestimento per esterno liscio ad elevato spessore a base di cemento 3.25, resine copolimeri vinillici. Elementi di prestigio, rigidi, dotati di elevata resistenza alla compressione e ad agenti atmosferici.

La sagomatura di polistirene espanso ad alta densità, conferisce agli elementi ricavati ed opportunamente rivestiti, l'importante caratteristica dell'isolamento termico. Sovente infatti si tende a sposare il concetto della decorazione dei fabbricati con modanature, bugne o profili, all'utilità di proteggere ed isolare lo stabile da esposizione ad agenti atmosferici e basse temperature.

La possibilità di prediligere una tipologia di rivestimento sull'altra, permette agli operatori di settore, d'individuare le caratteristiche tecniche che meglio si adattano alle esigenze dei singoli cantieri. Codificate in molteplici modelli e misure, la quasi totalità delle realizzazioni deriva da elaborazioni di modelli forniti su richiesta del cliente.

Tali componenti sostituiscono per praticità, leggerezza ed economia tutti i tradizionali elementi architettonici precedentemente realizzati in pietre naturali, malte o calcestruzzo gettato in matrici negative. La consueta posa e realizzazione di tali elementi, comporta costi elevati e particolari accorgimenti applicativi con relativa incidenza di manodopera.

Studi tecnici e punti vendita possono quindi ricercare una vasta serie di profili architettonici, cornici, sottogronde, marcapiani, dasce o bugne, tra la gamma dei modelli inseriti a catalogo, oppure elaborare un modello su proprio disegno senza alcun costo aggiuntivo. E' a disposizione infatti un efficiente studio tecnico, per la realizzazione di modelli o attuazione di modifiche, dietro indicazioni e prospetti della committenza.

Sulla gamma degli articoli Hidra Edge e su tutti i modelli realizzati a misura, risultano disponibili 3 tipologie di rivestimento, S.P. (Soft Protection) e H.P. (Hard Protection) in sede di conferma d'ordine o richiesta di preventivo, occorre fornire le opzioni necessarie.

S.P. Soft Protection: rivestimento per esterno di colore grigio scuro, a basso spessore a base di resine epossidiche in emulzione con finitura tipo civile. Prodotto economico, leggero, dotato di ottima resistenza ed elasticità.

H.P. Hard Protection: rivestimento per esterno di colore grigio chiaro, liscio ad elevato spessore a base di cemento 3.25, resine copolimeri vinilici. Elementi di prestigio, rigidi, dotati di elevata resistenza alla compressione e ad agenti atmosferici.

1) Preparazione del supporto: Il supporto deve risultare complanare, ripulito da polveri, grassi o sostanze che compromettano l’aderenza, solido, coeso, stagionato e privo di composti organici quali muschi o alghe. Rimuovere eventuali strati di vecchie pitture e rivestimenti, che possano pregiudicare l’adesione dei prodotti Hidra Edge. All’occorrenza procedere con posa di profilo in alluminio ad “U” fissato con tasselli.

2) Operare eventuali tagli su elementi Hidra Edge con sega circolare da banco o seghetto da legno. In alternativa è possibile commissionare articoli con tagli di varie angolature sui terminali o richiedere innesti prefissati alle estremità.

3) Applicare uniformemente su tutte le superfici posteriori e/o superiori delle realizzazioni, il collante Hidra Coll, avendo cura di posizionare l’impasto anche nel vano eventualmente ricavato nelle sezioni posteriori.

4) Ove necessario, procedere con applicazione temporanea di elementi di sostegno fino alla completa essiccazione del collante.

5) Sigillare i lati dei modelli Hidra Edge con Hidra Coll e silicone acrilico verniciabile. In corrispondenza delle giunzioni, è possibile posare idonea rete di rinforzo, opportunamente interposta tra strati di Hidra Coll.

6) Tinteggiare i modelli Hidra Edge con idonei prodotti vernicianti, determinati su specifiche di cantiere (esposizione, destinazione, ecc.)

Tutti gli articoli Hidra Edge sono realizzati specificatamente su richiesta del committente, pertanto anche gli articoli presenti a catalogo, necessitano di tempi tecnici per la realizzazione. In sede d’inoltro preventivi o conferme d’ordine, si invita la clientela a predisporre idonea gestione della tempistica.

In funzione delle singole specifiche produttive, è possibile riscontrare lievi imperfezioni, le quali non rappresentano alcun problema di tecnico e/o estetico.

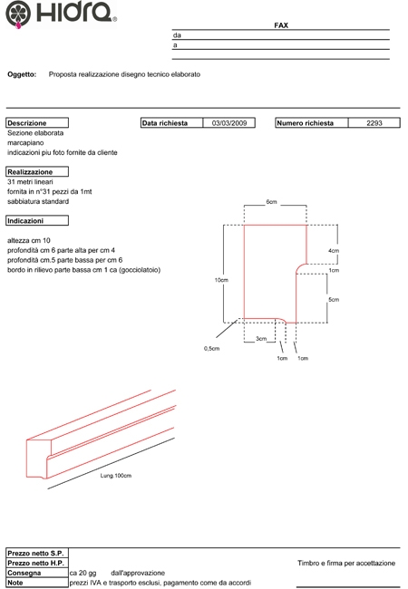
Marcapiano

Si tratta di un'incorniciatura definita da una serie di modanature sporgenti e può riprendere le forme della cornice negli ordini architettonici classici. Svolge la funzione di marcare esternamente la separazione interna tra diversi piani di un edificio. Si può presentare in genere in due punti: al livello del calpestio o al livello dei parapetti delle finestre. Risulta particolarmente utile al fine di delineare l’alternanza di due o più colorazioni affini in facciate, e nella conseguente praticità nell’ambito delle successive manutenzioni.

MP.B.0810

Dimensioni:

Altezza
140mm
Profondità
40mm
Lunghezza
1000mm

MP.H.0910

Dimensioni:

Altezza
155mm
Profondità
40mm
Lunghezza
1000mm

MP.H.0809

Dimensioni:

Altezza
100mm
Profondità
30mm
Lunghezza
1000mm

MP.H.2878

Dimensioni:

Altezza
278mm
Profondità
78mm
Lunghezza
1000mm

Sottogronde

Traggono origine dalla necessità di creare un coronamento estetico che sporgendo, allontanasse l'acqua piovana dalle strutture portanti e per questo, la loro forma è solitamente caratterizzata da una netta sporgenza (chiamata "soffitto" della cornice). Generalmente posizionate a ridosso di tetti e soffitti, nell’impiego moderno, aldilà di funzioni di ordine estetico, risultano particolarmente utili al fine di celare cavi o tubature, oltre che coibentare ed isolare strutture portanti in calcestruzzo.

SG.H.2010

Dimensioni:

Altezza
145mm
Profondità
100mm
Lunghezza
1000mm

SG.B.1510

Dimensioni:

Altezza
150mm
Profondità
100mm
Lunghezza
1000mm

SG.B.1512

Dimensioni:

Altezza
150mm
Profondità
100mm
Lunghezza
1000mm

SG.H.2050

Dimensioni:

Altezza
150mm
Profondità
130mm
Lunghezza
1000mm

SG.H.3010

Dimensioni:

Altezza
330mm
Profondità
300mm
Lunghezza
1000mm

SG.H.2117

Dimensioni:

Altezza
214mm
Profondità
168mm
Lunghezza
1000mm

SG.N.1411

Dimensioni:

Altezza
140mm
Profondità
110mm
Lunghezza
1000mm

Cornici

Più in generale, si intende con il termine cornice un componente con modanature aggettanti che costituisca un'incorniciatura ad elementi edili quali porte, arcate o finestre, al fine di rendere prestigio ed importanza a tali strutture. Attualmente risultano particolarmente interessanti per congiungere dislivelli di quote, sopraggiunti a seguito di applicazione di rivestimento a termocappotto.

CR.H.0310

Dimensioni:

Altezza
80mm
Profondità
30mm
Lunghezza
1000mm

CR.H.0307

Dimensioni:

Altezza
75mm
Profondità
40mm
Lunghezza
1000mm

CR.H.8615

Dimensioni:

Altezza
140mm
Profondità
85mm
Lunghezza
1000mm

Fasce Cappotto

Una modanatura è una fascia sagomata secondo un profilo geometrico, continuo per tutta la sua lunghezza. Solitamente impiegata nella decorazione architettonica, con la funzione di sottolineare la suddivisione in parti dello stabile, attraverso opportune ripetizioni tende a conferire armonia ed eleganza alle strutture. Attualmente, tramite la realizzazione di giunture battenti, si conferisce continuità al rivestimento decorativo, fornendo adeguato isolamento alle pareti senza esporre le sezioni sottostanti, inoltre attraverso lo scorrimento del segmento inferiore, al di sotto del corrispettivo superiore, si evitano infiltrazioni di acque piovane nelle aree posteriori.

FC.H.2504

Dimensioni:

Altezza
250mm
Profondità
40mm
Lunghezza
1000mm

FC.H.3145

Dimensioni:

Altezza
310mm
Profondità
45mm
Lunghezza
1000mm

FC.H.3350

Dimensioni:

Altezza
310mm
Profondità
45mm
Lunghezza
1000mm

FC.H.4640

Dimensioni:

Altezza
458mm
Profondità
40mm
Lunghezza
1000mm

FC.H.3850

Dimensioni:

Altezza
38mm
Profondità
50mm
Lunghezza
1000mm

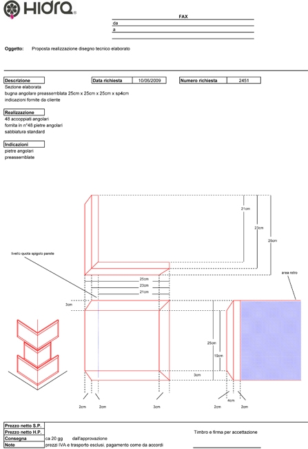
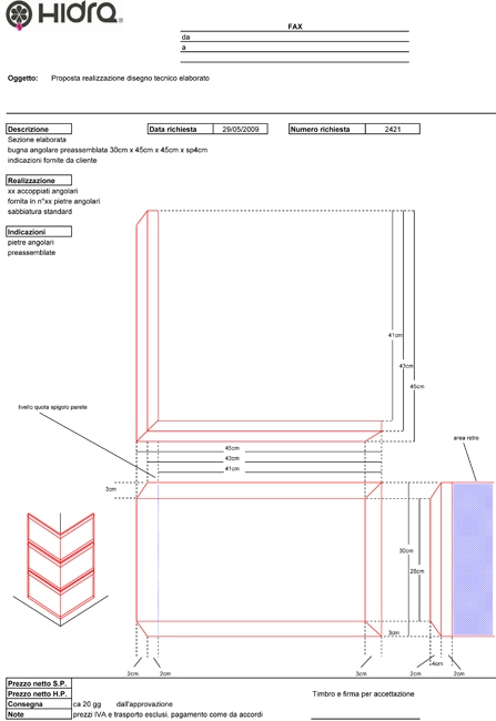
Bugne

Lo stile bugnato risulta essere una tipologia di rivestimento decorativo tipico dell’architettura rinascimentale. Rivestimento composto da pietre sporgenti dalla parete (bugne), solitamente impiegato per realizzare zoccolature o ricoprire edifici fino al livello del solaio piano terra.

BP.B.3725

Dimensioni:

Altezza
250mm
Profondità
40mm
Lunghezza
1000mm

BP.H.5040

Dimensioni:

Altezza
400mm
Profondità
35mm
Lunghezza
1000mm

BP.M.4532

Dimensioni:

Altezza
325mm
Profondità
35mm
Lunghezza
1000mm

BP.M.6132

Dimensioni:

Altezza
325mm
Profondità
35mm
Lunghezza
1000mm

BP.H.5025

Dimensioni:

Altezza
250mm
Profondità
30mm
Lunghezza
1000mm

Realizzazioni Particolari

La possibilità di riprodurre particolari fregi, colonnati o manufatti con le medesime metodologie adottate in passato risulterebbe obsoleto quanto economicamente sconveniente. Le soluzioni che si riescono a proporre sono molteplici: Vecchie colonne in pietra serena oramai lesionate ed incapaci di sostenere il peso di una nuova cancellata, e quindi sostituite con pilastro in acciaio inserito in un guscio di profilato Hidra Edge SP che riproduce in tutto e per tutto il vecchio stile del colonnato. Oppure su ristrutturazione di abitazioni di ringhiera, la riproduzioni di travetti sottobalconi con vano di alloggio per putrelle in acciaio.